
Dessy Immo met en vente à 47 rue du Vieux Château à Herstal cette maison de 129 m².
Ce bien se distingue par son emplacement dans une agréable rue sans issue au calme, l'absence de vis-à-vis, et un potentiel d'aménagement entièrement libre grâce à son état brut. C’est une opportunité idéale pour les amateurs de rénovation ou les investisseurs souhaitant créer un logement agréable.
La maison, répartie sur plusieurs niveaux, offre de belles possibilités d’optimisation de l’espace, notamment grâce à un grenier aménageable. Vous bénéficierez également d'une agréable terrasse, parfaite pour profiter des beaux jours en toute intimité.
À proximité immédiate du centre d’Herstal, vous accédez facilement aux commerces, écoles, transports en commun et axes autoroutiers tout en profitant du calme d’une rue sans passage.
Le bien est à rénover, ce qui permet de repenser totalement la distribution intérieure et les finitions selon vos envies.
Performance énergétique : certificat PEB G – 983 kWh/m²/an
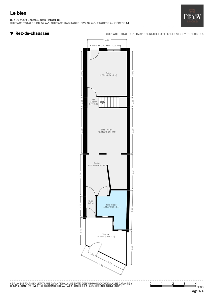
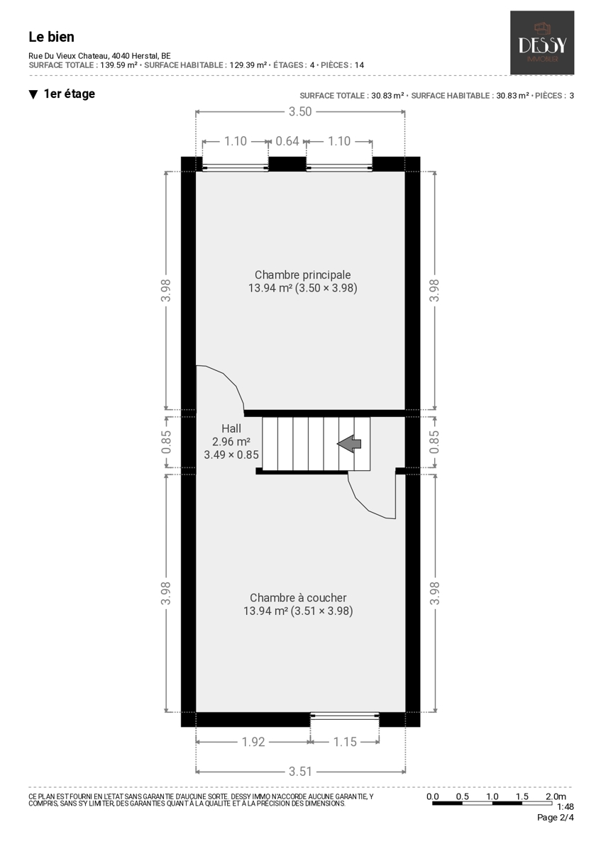
Composition :
• Sous-sols : Cave avec espace de stockage
• Rez-de-chaussée : Hall d’entrée, séjour, cuisine, salle d'eau, accès à la terrasse
• Premier étage : 2 chambres
• Deuxième étage : Grenier aménageable
• Extérieurs : Terrasse sans vis-à-vis
Caractéristiques principales :
• Nombre de chambres : 2 actuellement, possibilité de 3
• Salle de bain : 1
• Cuisine : À installer
• Chauffage : À prévoir (système existant inexistant)
• État : à rénover
• Proximité : Située à quelques pas du centre de Herstal, à proximité des commerces (Carrefour, Colruyt, Action, etc.), écoles, transports en commun (bus), autoroute E40/E25
• Jardin/Terrasse : Terrasse privative
• Parking/Garage : Non
• Atouts spécifiques : Pas de voisin direct en face – Rue calme en zone avec peu de assage – Fort potentiel d’aménagement
• Impétrants : Présence de compteurs à vérifier pour l'eau, l'électricité et le gaz
• Disponibilité : À la signature de l’acte
Prix de vente : 109.000 € (hors droits d’enregistrement)
(Sous réserve d’acceptation du propriétaire vendeur)
Consultez www.dessy-immobilier.be pour plus d’informations.
Pour organiser une visite, contactez-nous au 04 378 39 83 ou par e-mail : info@dessy-groupe.be
Adresse :
Rue du Vieux Château 47 - 4040 Herstal
Référence | 6815829 |
---|---|
Catégorie | Maison |
Meublé | Non |
Nombre de chambres | 3 |
Nombre de salles de bain | 1 |
Terrasse | Oui |
Surface habitable | 109,7 m² |
Surface du terrain | 75 m² |
Chambre 1 (surface) | 14 m² |
---|---|
Chambre 2 (surface) | 14 m² |
Chambre 3 (surface) | 20 m² |
Nbre de terrasse(s) (nombre) | 1 |
Salle de séjour (surface) | 14 m² |
Salle à manger (surface) | 14 m² |
Cuisine (surface) | 12 m² |
Volets | Oui |
---|---|
Volets (type) | pvc |
Magasins (distance (m)) | 150 |
---|---|
Écoles (distance (m)) | 50 |
Transports en commun (distance (m)) | 50 |
Magasins | Oui |
Ecoles | Oui |
Transports en commun | Oui |
Autoroute | Oui |
Autoroute (distance (m)) | 500 |
Double vitrage | Oui |
---|---|
Sdb (type) | douche |
Double vitrage (type) | isol. thermique |
Sous régime TVA | Non |
---|
Égouts | Oui |
---|---|
Électricité | Oui |
Eau | Oui |
Châssis (type) | pvc |
---|
Surface de terrasse 1 | 10.2 m² |
---|
Revenu cadastral (€) (montant) | 332 € |
---|
Grenier | Oui |
---|---|
Cave | Oui |
Label PEB (classe) | G |
---|---|
PEB E-SPEC (kwh/m²/an) | 893 |
Emission CO2 (émission CO2) | 229 |
E total (Kwh/an) | 85388 |
PEB code unique | 20250318019112 |
PEB valide jusqu'au (datetime) | 18/03/2035 |
Date du PEB (datetime) | 18/03/2025 |